ERSTBEZUG: Gartenwohnung in Ruhelage!

Flat , 8061 Sankt Radegund bei Graz


Property description

× These contents are currently available in german only. Please get in touch with the property's agent for more information.

ERSTBEZUG: Gartenwohnung in Ruhelage!

Willkommen in Ihrem neuen Zuhause in der idyllischen Gemeinde Sankt Radegund bei Graz! Diese traumhafte Gartenwohnung im Erdgeschoss bietet Ihnen nicht nur modernen Wohnkomfort, sondern auch eine unvergleichliche Lebensqualität inmitten der grünen Natur. Diese traumhafte Immobilie mit Baustart im Jänner 2026 ist der perfekte Ort für Kleinfamilien, Pärchen oder Singlesdie Wert auf Raum, Komfort und eine erstklassige Lage legen.



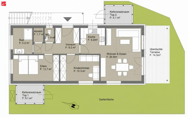
Mit einer großzügigen Wohnfläche von ca. 67,5 m² und zwei lichtdurchfluteten Zimmern mit geräumiger Wohn-& Essküche ist diese Wohnung der perfekte Rückzugsort für alle, die die Ruhe und Schönheit der Umgebung schätzen.



Der Erstbezug sorgt dafür, dass Sie von Anfang an in eine neuwertige, hochwertige Ausstattung eintauchen können.



Die Gartenwohnung verfügt über ein modernes Badezimmer mit Fenster und Dusche, das Ihnen den idealen Start in den Tag ermöglicht. Genießen Sie den Komfort von Fliesen und Parkett, die nicht nur stilvoll, sondern auch pflegeleicht sind. Eine Fußbodenheizung sorgt für wohlige Wärme, während die moderne Luftwärmepumpe eine energieeffiziente Heizlösung bietet. Jede Wohneinheit enthält eine eigene Zentralheizungsanlage – frei stehende Luft/Wasser Wärmepumpe. Die Warmwasseraufbereitung erfolgt über die Inneneinheit Luft/Wasser Wärmepumpe.



Die Außenwand besteht aus: einer 25 cm dicken Ziegelwand, die mit 16 cm Dämmung versehen ist. Diese Konstruktion hat eine hohe Wärmedämmung.



Der absolute Höhepunkt dieser Wohnung ist der Zugang zu Ihrem eigenen Garten und der großzügigen Terrasse. Hier können Sie entspannen, die Sonne genießen oder mit Freunden und Familie unvergessliche Grillabende verbringen. Der Garten bietet Ihnen die Möglichkeit, Ihre persönliche grüne Oase zu gestalten und die Natur in vollen Zügen zu erleben. 



IHRE TOP HIGHLIGHTS:



  • Erstbezug 
  • Luft/Wasser Wärmepumpe
  • Ruhelage 
  • Eigener Garten
  • Erstklassige Lage 
  • Barrierefreiheit 


Nutzen Sie die Gelegenheit, Teil dieser einzigartigen Wohnsituation zu werden! Sie erwartet nicht nur eine neuwertige Wohnung, sondern auch ein neues Lebensgefühl. Erleben Sie die perfekte Symbiose aus modernem Wohnkomfort und naturnaher Umgebung.



Zögern Sie nicht, uns zu kontaktieren, um einen Besichtigungstermin zu vereinbaren und sich selbst von dieser einzigartigen Gartenwohnung zu überzeugen unter +43 676 3646748. Ich freue mich auf Ihren Anruf. Eva Antley, Roderick Scherer Immobilien GmbH. Ihr neues Zuhause in Sankt Radegund wartet auf Sie!




Sie möchten diese Immobilie finanzieren? Gerne zeigen wir Ihnen in einem kostenlosen und unverbindlichen Beratungsgespräch (vor Ort oder online) die aktuellen Möglichkeiten am heimischen Kreditmarkt auf. Unsere Finanzierungsexperten vergleichen für Sie eine Vielzahl von Banken und Bausparkassen, um für Sie die besten Konditionen zu erreichen (Laufzeit, Rate, Eigenmittel). Optimal zugeschnitten auf Ihre Bedürfnisse. Sprechen Sie uns gerne an.

Noch nichts gefunden? Wir informieren Sie über geeignete Immobilienangebote noch vor allen anderen.
Legen Sie jetzt Ihren individuellen Suchagenten unter folgendem Link an. Wir schicken Ihnen passende Immobilien exklusiv vorab zu.

Suchagent anlegen - https://roderick-scherer-immobilien.service.immo/registrieren/de


Der Vermittler ist als Doppelmakler tätig.

Infrastruktur / Entfernungen

Gesundheit
Arzt <1.500m
Apotheke <4.500m
Krankenhaus <1.500m
Klinik <5.000m

Kinder & Schulen
Schule <2.000m
Kindergarten <2.500m
Höhere Schule <8.500m

Nahversorgung
Supermarkt <2.000m
Bäckerei <7.500m

Sonstige
Bank <2.000m
Geldautomat <2.000m
Post <2.000m
Polizei <2.500m

Verkehr
Bus <500m
Straßenbahn <7.500m

Angaben Entfernung Luftlinie / Quelle: OpenStreetMap

Summary, object # 5420/7162

Type: Flat
Country: Austria
Built: 2026
Condition: Erstbezug
Build type: Neubau
Purchase price: 290,500.00
Provision: 3% des Kaufpreises zzgl. 20% USt.
Usable space: 67.50 m²
Rooms: 3
Baths: 1
Toilets: 1
Terraces: 1
car space: 1
Garden: 65.00 m²
basement: 5.10 m²
Heating consumption:  C  62.80 kWh/m²a
fGEE:  A+  0.69
Exposé

Ausstattung

Tiles, Parkett, Underfloor heating, Central heating, Bath with window, Shower, Cable/satellite TV, Parking lot


Immobilie anfragen


Ihre persönliche Beratung

Roderick Scherer Immobilien GmbH

Eva Antley

Roderick Scherer

T +43 676 3646748