ERSTBEZUG „ein viertel grün“ in Wiener Neustadt - zentral gelegene 2 Zimmerwohnung mit Balkon

Flat , 2700 Wiener Neustadt , Stadionstraße


Property description

× These contents are currently available in german only. Please get in touch with the property's agent for more information.

ERSTBEZUG „ein viertel grün“ in Wiener Neustadt - zentral gelegene 2 Zimmerwohnung mit Balkon

Willkommen in Ihrem neuen Zuhause in Wiener Neustadt!



In unserem neuen Wohnquartier trifft modernes Wohnen auf naturnahe Umgebung – ideal für junge Familien, Paare sowie Einzelpersonen die Wert auf Lebensqualität, Gemeinschaft und Nachhaltigkeit legen.



Das Projekt bietet besten Wohnkomfort für Familien, direkt im Quartier befindet sich ein moderner Kindergarten. Hier werden Ihre Kleinen optimal betreut - und das ganz in Ihrer Nähe Ihres Wohnortes. 



Nach dem Kindergarten können sich die Kinder noch auf den diversen Spiel- und Bewegungsmöglichkeiten austoben, welche sich über das gesamte Areal erstrecken. 



Ein eigener Quartierstreff sorgt für regen Austausch unter Nachbarn und lässt garantiert neue Freundschaften bei Groß und Klein entstehen. 



Das gesamte Areal ist verkehrsberuhigt und umgeben von Grünflächen. Sie müssen jedoch aufgrund der hervorragenden Lage nicht auf die Annehmlichkeiten der Stadt verzichten. 



Diverse Geschäfte des täglichen Bedarfs befinden sich in unmittelbarer Nähe und sind fußläufig erreichbar (Merkur City).



Hier die Details zu unserem Projekt im Überblick:



  • 42 geförderte Mietwohnungen
  • 2 - 4 Zimmer, ca. 51 m² - 89 m²
  • Jede Wohnung mit Eigengarten und Terrasse, Balkon oder Dachterrasse 
  • hochwertige Laminatböden
  • gut durchdachte Grundrisse
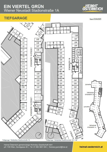
  • Tiefgaragenstellplatz, bereits in der Miete inkludiert
  • Fahrrad- und Kinderwagenräume
  • Einlagerungsräume
  • Personenaufzug
  • Müllraum
  • effiziente Photovoltaikanlage am Dach
  • kontrollierte Wohnraumlüftung mit Wärmerückgewinnung und zentraler Lüftungsanlage
  • HWB Wert ca. 26,26 kWh/m²a, fGEE ca. 0,63
  • Fertigstellung voraussichtlich Frühjahr 2026


Anm.: Die winterlichen Bilder wurden mittels KI erstellt.

Willkommen in Ihrem neuen Zuhause!



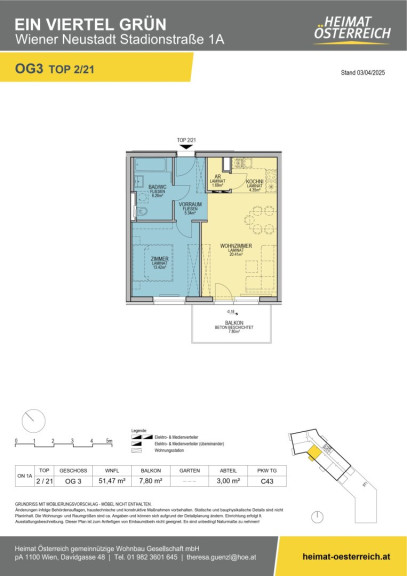
Diese erstklassige Immobilie im dritten Obergeschoss vereint stilvolles Wohnen mit einer hervorragenden Lage – perfekt für Singles oder Paare.



Mit einer Fläche von ca. 51 m² präsentiert sich diese 2-Zimmer-Wohnung als lichtdurchfluteter Rückzugsort. Der durchdachte Grundriss sorgt für eine optimale Raumnutzung, während die hochwertigen Materialien wie Fliesen und Laminat für ein elegantes Wohnambiente sorgen.



Der Erstbezug dieser Wohnung sorgt für ein neues und harmonisches Wohngefühl.



Ein Highlight dieser Immobilie ist der schöne Balkon - hier lässt es sich garantiert herrlich entspannen



Die Wohnküche ist der ideale Ort, um kulinarische Köstlichkeiten zu zaubern und gesellige Abende mit Freunden und Familie zu verbringen. Direkt beim Küchenbereich befindet sich ein Abstellraum. Dieser kann somit auch optimal als Speis genutzt werden.



Das Schlafzimmer ist zentral vom Vorraum aus begehbar.



Das Badezimmer ist modern verfliest und mit einer Badewanne ausgestattet. Des Weiteren befinden sich ein Handwaschbecken, ein WC und ein Waschmaschinenanschluss im Badezimmer. 



Mit einem Tiefgaragenstellplatz ist bestens für Ihren PKW gesorgt. Der Stellplatz ist bereits in der Miete inkludiert!



Befristung: unbefristet, 1 Jahr Kündigungsverzicht 3 Monate Kündigungsfrist



Bezug: voraussichtlich Frühjahr 2026



Energiekennzahlen:  Der Heizwärmebedarf  beträgt ca. 26,26 kWh/m²a Klasse B und der Gesamtenergieeffizienz-Faktor ca. 0,63 Klasse A+.



Die monatliche Miete beläuft sich auf € 673,04 inkl. BK und Ust. und der einmalige Finanzierungsbeitrag beträgt € 18.014,50.



Verpassen Sie nicht die Gelegenheit, diese moderne und komfortable Wohnung zu Ihrem neuen Zuhause zu machen!



Hier geht es zu weiteren Mietwohnungen:
Geförderte Mietwohnungen - ein viertel grün



Anm.: Die winterlichen Bilder wurden mittels KI erstellt.

Noch nichts gefunden? Wir informieren Sie über geeignete Immobilienangebote noch vor allen anderen.
Legen Sie jetzt Ihren individuellen Suchagenten unter folgendem Link an. Wir schicken Ihnen passende Immobilien exklusiv vorab zu.
Suchagent anlegen - https://heimat-oesterreich.service.immo/registrieren/de


Der Immobilienmakler erklärt, dass er – entgegen dem in der Immobilienwirtschaft üblichen Geschäftsgebrauch des Doppelmaklers – einseitig nur für den Vermieter tätig ist.

Infrastruktur / Entfernungen

Gesundheit
Arzt <1.000m
Apotheke <250m
Klinik <2.500m
Krankenhaus <1.250m

Kinder & Schulen
Schule <250m
Kindergarten <500m
Höhere Schule <1.750m
Universität <2.000m

Nahversorgung
Supermarkt <500m
Bäckerei <750m
Einkaufszentrum <250m

Sonstige
Bank <750m
Geldautomat <750m
Post <750m
Polizei <750m

Verkehr
Bus <250m
Autobahnanschluss <3.000m
Bahnhof <1.500m
Flughafen <2.250m

Angaben Entfernung Luftlinie / Quelle: OpenStreetMap

Summary, object # 5026

Type: Flat
Country: Austria
Built: 2025
Condition: Erstbezug
Build type: Neubau
Total rent: 673.04
Rent excl. utility (net): €673.04
rent excluding heating bills: €673.04
Provision: Gemäß Erstauftraggeberprinzip bezahlt der Abgeber die Provision.
Living space: 51.47 m²
Rooms: 2
Baths: 1
Toilets: 1
Balcony: 1
car space: 1
basement: 3.00 m²
Heating consumption:  B  26.26 kWh/m²a
fGEE:  A+  0.63
Exposé

Ausstattung

Tiles, Laminate floor, Solar energy, Lift, Bathtub, Basement car park


Immobilie anfragen


Ihre persönliche Beratung

Theresa Günzl

Heimat Österreich gemeinnützige Wohnungs- und Siedlungsgesellschaft m.b.H.

T +431 9823601 645

M 0676 3717805